物件情報

Property

岸和田 西大路 2号地 新築戸建

販売価格
2,780万円+税
住所
岸和田市西大路町134-3(2号地)
土地面積
167.44㎡/50.65坪
有効面積
125.68㎡/38.01坪
専用道路
41.76㎡
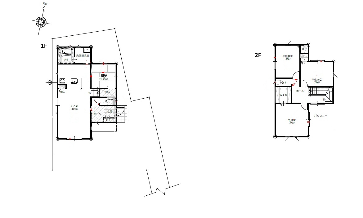
建物面積
1F52.65㎡ 2F47.79㎡
構造
木造2階建スレート葺・4LDK
接道
建築基準法第43条2項第2項第2号 幅員4mに4m接面
その他
建築確認許可通知第05-2-002号・上下水道込
最寄り駅
JR阪和線「久米田」駅より徒歩13分
地目
宅地
用地地域
準工業
他の法令上の制限
準防火地域
建ぺい
60%
容積
200%
建築条件
あり
地勢
平坦
設備
(※別途外構費:88万円税込)・側溝・都市ガス・電気)
現況
更地
販売形態
売主